Diseño Interior y Mobiliario Artístico
GIGANTES DORMIDOS

UBICACIÓN: Mérida Yucatán
PROYECTO RESIDENCIAL
GANADOR
EN LA 9° EDICIÓN DE LOS PREMIOS PENINSULA 2025 AAI MÉXICO
EN LA CATEGORÍA PROYECTOS ESPECIALES



GIGANTES DORMIDOS
Adrián Gómez · Colección de mobiliario escultórico.
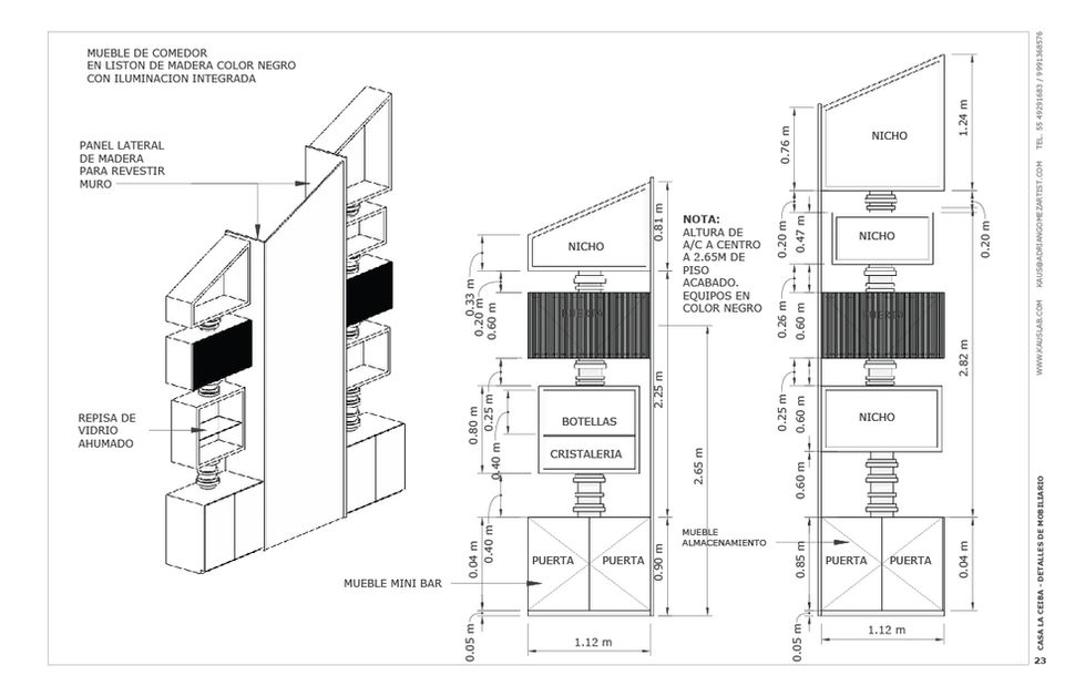
Gigantes Dormidos es una colección de mobiliario escultórico creada por Adrián Gómez, concebida como una única entidad fragmentada en cinco piezas: una credenza monumental, un tótem con elementos de vidrio soplado, dos nichos escultóricos, un centro de entretenimiento y un bar. Más que muebles funcionales, cada elemento es un vestigio de un gigante mitológico disuelto en el espacio doméstico. Unificados por un mismo lenguaje simbólico, matérico y geométrico, estos fragmentos evocan volcanes, cuerpos petrificados y rituales antiguos. Talladas en maderas locales mediante técnicas de quemado y cardeado, las piezas revelan una textura viva y profunda, donde la materia conserva su historia. La colección propone habitar un mito: convivir con los restos sagrados de un titán que aún sueña bajo tierra.
ORIGEN DEL DISEÑO
EL ARTE COMO GÉNESIS DEL OBJETO
En Kauslab by Adrián Gómez Art, cada diseño nace primero como obra de arte. Antes de concebir una pieza de mobiliario o un objeto funcional, existe una imagen poética, un mito fundacional que da sentido al todo.
El Legado del Gigante (2024) es la obra que da origen a esta colección. En ella, Adrián Gómez representa el instante simbólico en que un coloso emerge de las entrañas de un volcán, envuelto en fuego y neblina, como metáfora del despertar ancestral, de la memoria que asciende desde las profundidades de la Tierra para manifestarse en la forma. Esta pieza no es solo pintura: es un portal narrativo que integra arte digital, intervención pictórica, polvo de oro, neón y resina, para convocar la energía latente de lo monumental.
Desde esa visión nace el diseño escultórico, como continuación natural de un gesto artístico. Cada objeto, cada estructura diseñada, lleva en su geometría la resonancia de ese mito original. Así, el mobiliario no es un simple contenedor o soporte: es un testigo de leyendas, un guardián de símbolos. Diseñar, para Kauslab, es traducir lo invisible en materia; es construir desde el arte una forma viva que dialogue con el espacio.
En la obra del artista y diseñador Adrián Gómez, el mobiliario no solo es un objeto funcional, sino un fragmento de una narrativa viva. Gigantes Dormidos es una propuesta de mobiliario que se presenta como una sola pieza dividida en cinco momentos. No son cinco diseños distintos, sino una sola entidad: un titán de piedra disuelto en el espacio doméstico contemporáneo.
Esta colección construye su identidad a partir de un único lenguaje formal, matérico y simbólico, replicado en cinco escalas distintas. Cada pieza corresponde a una sección del cuerpo de un gigante mitológico: una credenza monumental, un tótem con piezas de vidrio soplado, dos nichos escultóricos de gran escala, un centro de entretenimiento y un bar. Aunque sus funciones varían, todas se inscriben en un mismo alfabeto geométrico y narrativo, y comparten proporciones, materiales y alma.
Inspiradas en las leyendas de los gigantes dormidos —como Popocatépetl e Iztaccíhuatl, volcanes que aún custodian el horizonte mexicano— estas piezas evocan cuerpos petrificados, columnas rituales, contenedores de memoria. Cada forma parece emerger de la tierra misma.
Las piezas fueron elaboradas en maderas locales cuidadosamente seleccionadas, trabajadas a mano por artesanos mediante un proceso de cardeado que revela una textura profunda y viva. El acabado final en color negro, logrado a través de técnicas tradicionales de quemado y cepillado, no cubre la materia: la transforma. En cada superficie, la veta de la madera permanece visible, como si fueran venas abiertas en el cuerpo del gigante, o fisuras tectónicas en la piel de la tierra. Este gesto no es decorativo, es ritual: permite que la historia de la materia permanezca latente en cada trazo.
Lo innovador de esta propuesta no radica en la forma aislada de una pieza, sino en el acto de proponer al mobiliario como sistema narrativo, como arquitectura simbólica que se fragmenta y se multiplica sin perder unidad. Frente a propuestas individuales, esta colección articula un discurso expandido: cada módulo es parte de una totalidad invisible. Se trata de habitar un gigante. De convivir con sus restos sagrados.
Esta colección propone un cambio de paradigma: entender el diseño no como respuesta aislada a una función, sino como un sistema vivo, con memoria y voz. Gigantes Dormidos es mobiliario que respira, que recuerda, que resiste.
CREDENZA MONUMENTAL
TORÁX DE OBSIDIANA
Nombre: Tórax de Obsidiana
Significado: Representa el centro vital del gigante. Es el núcleo donde se concentra la fuerza contenida. Su forma sobria y horizontal remite al pecho dormido de una criatura ancestral, maciza, contenida y aún palpitante bajo la piedra.
Esta pieza es el corazón estructural del gigante dormido. Su forma horizontal, sólida y sobria evoca el tórax petrificado de una criatura ancestral. Elaborada en madera local con acabado negro artesanal, revela vetas que laten como venas abiertas. Al mismo tiempo funcional y escultórica, esta credenza es centro de gravedad y anclaje visual del espacio.
.png)
SINGULARIDAD DEL INFINITO
La obra Singularidad del Infinito forma parte integral de la composición artística concebida para el espacio Gigantes Dormidos, integrándose visual y conceptualmente a la credenza de la colección. Su presencia monumental no solo complementa el mobiliario escultórico, sino que amplifica su narrativa simbólica, convirtiendo el conjunto en un diálogo entre materia terrestre y fenómenos cósmicos.
.jpeg)
COLUMNA DEL ALIENTO
TÓTEM CON PIEZAS DE VIDRIO SOPLADO
Significado: Como si de una espina dorsal sagrada se tratara, esta pieza vertical está compuesta por esferas de vidrio que recuerdan burbujas de lava y soplos vitales contenidos. Es la respiración suspendida del titán, donde lo sólido y lo etéreo se encuentran.
Vertical y etérea, esta estructura es la espina dorsal simbólica del titán. Sus elementos circulares de vidrio soplado suspenden el aliento del gigante, como burbujas de lava detenidas en el tiempo. Su presencia combina peso ritual y ligereza visual, conectando lo mineral con lo espiritual
.png)
.png)
GUARDIANES DE FUEGO
PAR DE NICHOSESCULTÓRICOS DE GRAN ESCALA
Significado: Se elevan como piernas o pilares de este ser dormido, pero también como figuras totémicas que custodian el umbral. Son titanes en sí mismos: arquitecturas devocionales que habitan el espacio como altares silenciosos.
Estas dos piezas funcionan como pilares narrativos de la colección. Monumentales y contenidos, son estructuras verticales que pueden almacenar, exhibir y custodiar. Inspirados en tótems protectores, se elevan como piernas o columnas de un cuerpo sagrado. Sus superficies oscuras, texturizadas y con iluminación integrada los convierten en custodios silenciosos de la memoria.
.png)
.png)
CORAZÓN DE CENIZA
CENTRO DE ENTRETENIMIENTO
Significado: Este mueble tecnológico se convierte aquí en el corazón del hogar —pero no un corazón cálido, sino uno hecho de carbón dormido. Es el latido oculto de la lava, una cámara que todavía pulsa entre memoria y función.
Tecnología y mito se cruzan en esta pieza que alberga sistemas audiovisuales como si fueran brasas ocultas. Su diseño frontal, sobrio y tectónico, recuerda una cámara de combustión sellada. El uso de listones negros y el detalle artesanal en la veta lo transforman en un corazón latente hecho de piedra, ceniza y memoria.
.png)
ALTAR DE ENCUENTRO
BAR
Significado: Más que un bar, esta estructura ceremonial es el lugar donde convergen los rituales cotidianos. Como una roca tallada por el tiempo, su función se diluye en su presencia. Es un altar para lo humano, contenido en la forma de lo ancestral.
Diseñado como un altar contemporáneo, este bar evoca una piedra ceremonial. Su estructura vertical y contenida, pensada para conservar botellas y objetos de hospitalidad, adquiere un aura ritual. Aquí, el acto cotidiano de compartir se convierte en ceremonia. Las texturas oscuras y los espacios vacíos hablan de silencio, fuego y sombra.
.png)
.png)
VOLVER / RETURN
Todas las piezas fueron diseñadas específicamente para un mismo espacio interior concebido por Adrián Gómez, reforzando así su coherencia visual y simbólica. El universo de la colección remite no solo a los mitos precolombinos, sino también a la geología profunda del planeta: al cráter, la lava, el humo, la piedra. El espacio completo se concibe como un volcán suspendido, un altar oscuro donde cada fragmento de mobiliario representa una erupción contenida:
el despertar latente de un titán que aún sueña bajo tierra.
ADRIAN GÓMEZ

CRÉDITOS
Todos los derechos reservados.
Gigantes Dormidos es una creación original de
Adrián Gómez Art. El diseño se encuentra registrado ante el Instituto Nacional del Derecho de Autor (INDAUTOR), México.Queda estrictamente prohibida la reproducción total o parcial, distribución, comunicación pública, transformación o cualquier uso no autorizado de esta obra, en cualquier forma o por cualquier medio, sin la autorización previa y por escrito del titular de los derechos.
© 2025 Adrián Gómez Art.
DIRECCIÓN CREATIVA Y CONCEPTUAL:
ART. DI. ADRIAN GÓMEZ
ARTE. DISEÑO. TEXTO:
ART. DI. ADRIAN GÓMEZ
INTERIORISMO:
KAUSLAB BY ADRIANGOMEZ ART
DIRECTIOR OPERATIVO:
ARQ. ENDERSON PÉREZ
RENDERS:
ARQ. ENDERSON PÉREZ
FOTOGRAFÍA:
JAVIER GONGORA. KAUSLAB BY ADRIANGOMEZ ART
CARPINTERÍA:
ROBERTO MEDINA TALLER
ARQUITECTURA:
FONTEM LABORATORIO ARQUITECTÓNICO
Arq. Gerardo E. Morán Torres / Arq. Rogelio Pliego Pérez Abreu
PROVEEDORES:
HA´GUAR Chukúm artesanal. ALIANZA Concretos. MIDO Mármol y Granito







































































































































































